
Komarna,
10.11.2005. - Danas je u Komarni, općina Slivno, prigodnom svečanošću obilježen početak pripremnih radova na mostu kopno-Pelješac i pristupnim cestama kojima će biti spojen na državne ceste D8 i D414. Na svečanosti su, osim premijera Ive Sanadera, koji je otvorio radove, bili i ministri u Vladi RH Marina Matulović-Dropulić, Božo Biškupić, Ivan Šuker i Božidar Kalmeta, potpredsjednik Hrvatskoga sabora u Luka Bebić, predsjednik Uprave Hrvatskih cesta Stjepko Boban, župan Dubrovačko-neretvanske županije Ivo Miletić, Dubravka Šuica gradonačelnica Dubrovnika te gradonačelnici i načelnici susjednih gradova i općina.

Premijer Sanader nije krio zadovoljstvo što su započeli pripremni radovi na ovako važnu objektu za cijelu Dubrovačko-neretvansku županiju i najavio nove projekte kao što su dva kraka koridora CV, od kojih je jedan u našoj županiji, te radove na Autocesti Zagreb-Dubrovnik od Ploča do Osojnika u dužini 102 km. Time je potvrdio da će ta cesta cijelom dužinom ići kroz hrvatski teritorij, i da će tek kod Osojnika prijeći na teritorij BiH. Sanader je, također, najavio i gradnju plinovoda do Dubrovnika kako bi svim građanima Republike Hrvatske plin bio dostupan.
Danas započete radove na pristupnoj cesti preko brda Međed izvodi ekipa Konstruktor inženjeringa iz Splita.

Most kopno-Pelešac premostit će Neretvanski kanal čija je širina na tom mjestu na razini mora 2140 m, a na razini nivelete 2380 m. Dubina mora na mjestu gradnje je približno stalna, oko 27 m. Ukupna duljina mosta od osi do osi upornjaka iznosit će 2374 m. Zbog specifična položaja u odnosu na zaljev Neum-Klek minimalni plovidbeni profil ispod budućeg mosta bit će širok 130 m, a visok 30 m. Rasponski sklop mosta je čelični sanduk na armiranobetonskim stupovima. Ukupno će imati 14 stupova od kojih je jedan na kopnu i 13 u moru.
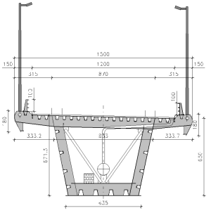
Prometna širina mosta s dva kolnička traka širine po 3,5 m i obostranim servisnim trakovima od 2,5 m u koje su uključeni zaštitni trakovi širine 20 cm. Nadvišeno područje sidrenja čelične odbojne ograde i sidrenja stupova rasvjete širine je 150 cm obostrano. Širina kolnika mosta je 12 m, a ukupna širina mosta 15 m.

Rasponski sklop je kontinuirani punostijeni sandučasti čelični sanduk preko 15 raspona. Ukupna duljina iznosi: 2374 m. Sanduk je nepromjenjive visine visine od 6,5 m. Hrptovi su kosi s vertikalnim ukrućenjima nad ležajevima, a razmak ležajeva u poprečnom smjeru iznosi 6,15 m. Kolnička ploča je čelična ortotropna ploča sa zatvorenim trapezastim uzdužnim ukrućenjima. Ukupna količina čelika za rasponski sklop iznosi oko 20 000,0 t.

Temeljenje za oba upornjaka i za stup S2 je plitko na stijeni. Stupovi S3 do S15 temelje se u moru gdje su uvjeti temeljenje izrazito nepovoljni. Temeljno tlo je jednolikog sastava izrazito male nosivosti. Dubina mora je konstantna na cijelom prijelazu i iznosi 27 m. Odabrano je temeljenje na zabijenim čeličnim pilotima sa naglavnom pločom na razini mora. Vertikalno opterećenje prenosi se pilotima dubine 96 m (do kote –97 m nad morem). Zbog male horizontalne krutosti temeljnog tla izvode se piloti (8-10) promjera 2,5 m s debljinom stijenke 60 mm.
Most bi trebao biti gotov do 2008. i najviše će koristiti stanovnicima doline Neretve i obiju obala Neretvanskog kanala koji su i kroz prošlost oduvijek bili životno povezani.