
Naziv
Mogorjelo
Podrijetlo naziva Mogorjela
jezikoslovci traže u imenu Sv. Mogora (gr.
Hermágoras, slov. Mohor). Po legendi Hermagora je bio učenik Sv.
Marka evanđelista, prvoga propovjednika kršćanstva u Akvileji.
Postao je mučenikom u doba cara Nerona. Kult Sv. Mogora franačkim
posredništvom širio se od Istre do Neretve nakon pokrštavanja
Hrvata. Vjerojatna je jedna crkva u Mogorjelu bila posvećena ovome
svecu.
Arheološka istraživanja u Mogorjelu
Arheološka iskapanja na lokalitetu
Mogorjelo izvršili su austrougarski stručnjaci pod vodstvom Carla
Patscha 1899.-1904. Na brijegu je u I. st. po. Kr. Sagrađena
villa rustica fructuaria – poljoprivredno dobro, koja se
sastojala od nekoliko građevina povezanih hodnicima. Izvan toga
kompleksa nalazila se radionica za proizvodnju keramičkih posuda,
ciglana i staje za životinje. Imanje je zapošljavalo više od stotinu
robova i pomoćnih radnika. Očuvalo se od gospodarske zgrade
prostorija za preradu i deponiranje ulja, te mlin za žito i pekara.
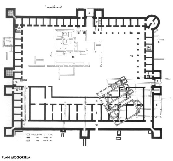
Druga faza Mogorjela
Prva villa rustica stradala
je u požaru u 4. st., kada je na Mogorjelu sagrađena utvrđena
palača, koja je zauzimala pravokutan prostor 102 x 86 m. Uglove i
vrata štitili su istureni tornjevi kvadratne osnove. Ukupno je bilo
trinaest kula, od kojih je jedna bila kružnoga oblika. Na
jugozapadnu zidu bio je samo jedan četvrtast toranj s vjerojatno
malim tajnim vratima. Glavna građevina na Mogorjelu bila je zgrada
za stanovanje okružene visokim zidom uz koji su prigrađene sporedne
prostorije. To je reprezentativna zgrada (praetorium) zvana
obično palača, u biti imitacija Dioklecijanove palače. Ispod palače
i danas se vide četiri kanala za odvod vode. Palača je razorena oko
401., možda za provale zapadnih Gota pod vodstvom Alariha.
Crkve u na Mogorjelu
Na ruševinama
Mogorjela u 5. stoljeću sagrađene su dvije crkve. Glavna bazilika
imala je naos (lađu) s prezbiterijem (10 x 6 m), baptisterij (2,80 x
2,90 m) i bočne prostorije. Piscina (krsni bazen) imala je oblik
križa, dubine oko jednoga metra, sa stubama za silazak u piscinu. Uz
ovu baziliku sagrađena je usporedno s njom slična, vjerojatno
sakralna građevina. Osnovu joj čine narteks i naos s prezbiterijem
(18 x 10,40 m) te polukružna apsida.
Što je rimski kompleks na Mogorjelu?
O Mogorjelu, njegovoj ulozi i
sudbini, među stručnjacima postoje različna mišljenja. Prvi njegov
istraživač C. Patsch bio je uvjeren da je otkrio vojni tabor. U
jednom zemljovidu iz rimskoga doba na području Mogorjela spominje se
putna postaja Ad Turres (Uz kule). Mogorjelo je
štitilo Naronu cestom uz Neretvu od provale barbarskih plemena.
Ostali istraživači tvrde da je rimski kompleks na Mogorjelu utvrđena
villa rustica.
Uljara na Mogorjelu
Šezdesetih
godina prošloga stoljeća u sklopu gospodarske zgrade restaurirana je
preša za pravljenje maslinova ulja (torkular). On je imao drveni
dio, kameni žrvanj, kanale i spremište za ulje. Danas je u zemlji
ostalo ukopano pet dolia olearia, posuda za pohranu
ulja, nešto poput rimskih hladnjaka.
Radoslav Dodig

